Scenic Design

The Playboy of the Western World

Scenic Design/Lightning Design/3D Modeling | 2015

Scenic Design

Scenic Design

This is a realistic stage design I made based on the play, The Playboy of the Western World written by John Millington Synge in 2014.

Starting from 2D

Starting from 2D

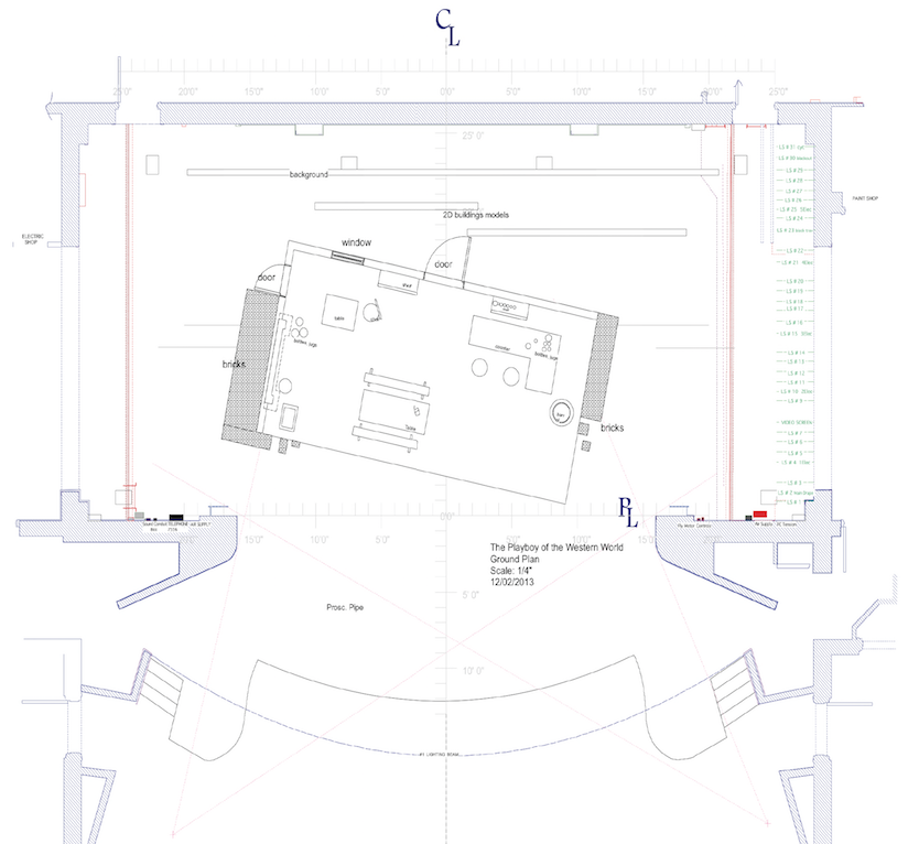
Before building the models, I first made several sketches and transformed those into a 2d floorpan in Vectorworks.

Focusing on the details

Focusing on the details

I modeled the house and furniture pieces individually in Vectoworks. I changed background to create the feeling of the fleeting time for the audience.